Espace propriétaire
fr

Votre recherche

Nouveauté
Martillac (33650)

4 pièces - 95,83 m²

Maison de 96 m² à rénover sur la commune de Martillac

291 500 €
Ref : 5147
A propos de ce bien

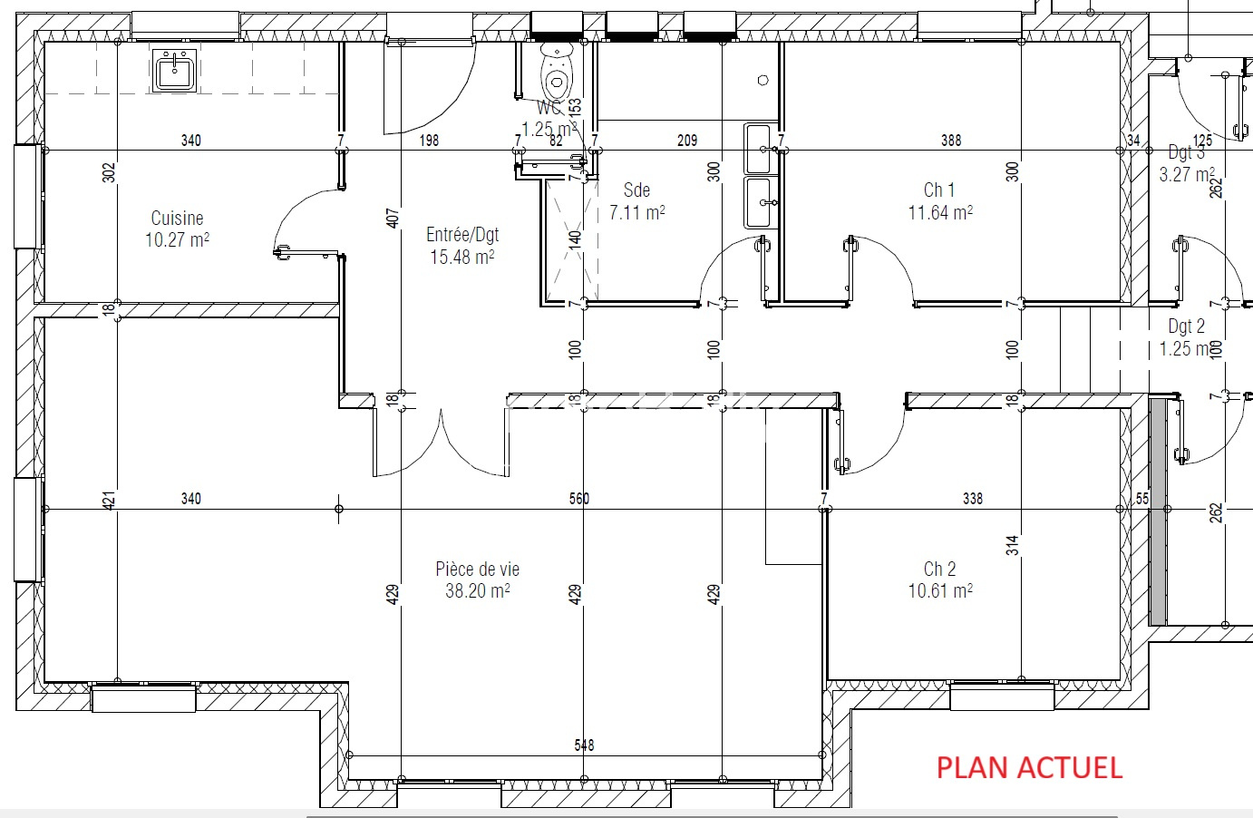
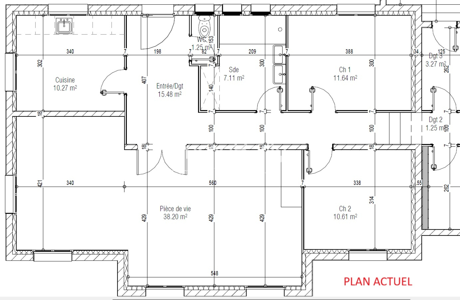
A Martillac, au calme, proche de toutes les commodittés à pied, venez saisir cette belle opportunité de maison à rénover. Vous disposez de 96 m² vendus sous forme de plateau à aménager selon vos souhaits. Actuellement la maison comprend une entrée, une cuisine séparée, un grand séjour salle à manger lumineux avec insert, un dégagement desservant deux chambres, toilettes et une salle de bains. Vous pourrez également profiter toute l'année d'une piscine couverte attenante de 45 m² avec un espace terrasse. A l'extérieur vous pourrez profiter d'un jardin arboré et intimiste entièrement clôturé. Le sytème de chauffage actuel est au gaz avec possibilité de le conserver ou d'opter pour une pompe à chaleur et les menuiseries sont en double vitrage. Nous vous invitons à prendre contact avec nous pour organiser une visite et vous accompagner au mieux dans ce beau projet de rénovation. Plans disponibles !

Descriptif de ce bien
Général
Code postal 33650
Surface habitable (m²) 95,83 m²
surface terrain 585 m²
Nombre de chambre(s) 3
Nombre de pièces 4
Détails
Nb de salle d'eau 2
Cuisine Séparée
Type de cuisine SEMI-EQUIPEE
Mode de chauffage Gaz de ville
Type de chauffage TRAD_TYPE_CHAUFF_CHAUDIERE
Format de chauffage Individuel
Terrasse OUI
Murs mitoyens 1
Exposition Est-Ouest
Année de construction 1972
Terrain arboré OUI
Composition
Rez de chaussée
salon/sejour 48.01 m²

WC 1.25 m²

salle d'eau 7.11 m²

chambre 11.64 m²

chambre 10.61 m²

chambre 12.32 m²

salle d'eau 2.20 m²

2.68 m²

Financier
Prix de vente honoraires TTC inclus 291 500 €
Prix de vente honoraires TTC exclus 275 000 €
Honoraires TTC à la charge acquéreur 6 %
Energie
DPE GES
Autour du bien
  • Commerces et santé
  • Loisirs
  • Ecoles
  • Transports
  • Pratique
Contacter pour ce bien
L'agence
Téléphone 05 56 64 14 07
Adresse
1 AVENUE DE MONT DE MARSAN 33850 Léognan

* Champ obligatoire

Les informations recueillies sur ce formulaire sont enregistrées dans un fichier informatisé par La Boite Immo agissant comme Sous-traitant du traitement pour la gestion de la clientèle/prospects de l'Agence / du Réseau qui reste Responsable du Traitement de vos Données personnelles.
La base légale du traitement repose sur l’intérêt légitime de l'Agence / du Réseau.
Elles sont conservées jusqu'à demande de suppression et sont destinées à l'Agence / au Réseau.
Conformément à la loi « informatique et libertés », vous pouvez exercer votre droit d'accès aux données vous concernant et les faire rectifier en contactant l'Agence / le Réseau.
Si vous estimez, après avoir contacté l'Agence / le Réseau, que vos droits « Informatique et Libertés » ne sont pas respectés, vous pouvez adresser une réclamation à la CNIL.
Nous vous informons de l’existence de la liste d'opposition au démarchage téléphonique « Bloctel », sur laquelle vous pouvez vous inscrire ici : https://www.bloctel.gouv.fr 
Dans le cadre de la protection des Données personnelles, nous vous invitons à ne pas inscrire de Données sensibles dans le champ de saisie libre
Ce site est protégé par reCAPTCHA, les Politiques de Confidentialité et les Conditions d'Utilisation de Google s'appliquent.

Découvrir nos outils